Description
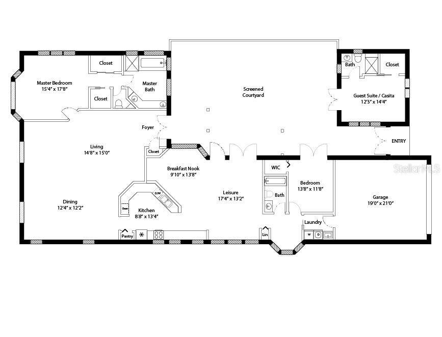
Major Price Reduction + Buyer Lender Incentives Available! Welcome to The Greensa quiet, maintenance-free golf course community located outside of high-risk flood zones ('X' zone), just minutes from IMG Academy Golf Club and waterfront dining. Enjoy a serene private preserve backdrop, a secluded courtyard design, and a versatile casita/in-law suite with new pool plans available upon request! This Sedona floor planthe builder's premier designoffers over 2,700 sq ft of thoughtfully designed living space centered around a private screened courtyard retreat. Inside, you'll find soaring 12-foot ceilings, hardwood floors, abundant natural light, and a flexible layout ideal for everyday living or hosting extended family. The detached casita, with its own entrance, full bath, and walk-in closet, provides a perfect space for guests or in-laws. The open kitchen, finished with neutral stone countertops, flows seamlessly into the dining room, breakfast nook, and leisure room with French doors overlooking the sunlit courtyard. On the preserve side, the primary suite offers peaceful wooded views, dual walk-in closets, and a spacious ensuite bath. A second bedroom with French doors opens to the courtyardideal as a guest room or home office. The private courtyard enjoys southern exposure, making it the perfect setting for outdoor diningor a future pool oasis (concept available). A dedicated laundry room and two-car garage offer added functionality and storage, with ample space for a golf cart. Built in 1997 with solid block construction, the home was updated in 2023 with a new HVAC system and water heater, and includes PVC plumbing for lasting peace of mind. The Greens is an intimate 43-home enclave, quietly tucked away with a single entry pointoffering privacy and a relaxed pace, while staying close to IMG Academy, Gulf beaches, SRQ Airport, and Downtown Sarasota. The IMG Academy Golf clubhouse is a short cart ride away with various optional membership opportunities, including fitness and social, with a beautiful waterfront restaurant on Sarasota Bay (open to the public). Come see the lifestyle for yourselfschedule your tour today!
-
3BEDS
-
0.21ACRES
-
3BATHS
-
01/2 BATHS
-
2,710SQFT
-
$258$/SQFT
School Ratings & Info
Description
Major Price Reduction + Buyer Lender Incentives Available! Welcome to The Greensa quiet, maintenance-free golf course community located outside of high-risk flood zones ('X' zone), just minutes from IMG Academy Golf Club and waterfront dining. Enjoy a serene private preserve backdrop, a secluded courtyard design, and a versatile casita/in-law suite with new pool plans available upon request! This Sedona floor planthe builder's premier designoffers over 2,700 sq ft of thoughtfully designed living space centered around a private screened courtyard retreat. Inside, you'll find soaring 12-foot ceilings, hardwood floors, abundant natural light, and a flexible layout ideal for everyday living or hosting extended family. The detached casita, with its own entrance, full bath, and walk-in closet, provides a perfect space for guests or in-laws. The open kitchen, finished with neutral stone countertops, flows seamlessly into the dining room, breakfast nook, and leisure room with French doors overlooking the sunlit courtyard. On the preserve side, the primary suite offers peaceful wooded views, dual walk-in closets, and a spacious ensuite bath. A second bedroom with French doors opens to the courtyardideal as a guest room or home office. The private courtyard enjoys southern exposure, making it the perfect setting for outdoor diningor a future pool oasis (concept available). A dedicated laundry room and two-car garage offer added functionality and storage, with ample space for a golf cart. Built in 1997 with solid block construction, the home was updated in 2023 with a new HVAC system and water heater, and includes PVC plumbing for lasting peace of mind. The Greens is an intimate 43-home enclave, quietly tucked away with a single entry pointoffering privacy and a relaxed pace, while staying close to IMG Academy, Gulf beaches, SRQ Airport, and Downtown Sarasota. The IMG Academy Golf clubhouse is a short cart ride away with various optional membership opportunities, including fitness and social, with a beautiful waterfront restaurant on Sarasota Bay (open to the public). Come see the lifestyle for yourselfschedule your tour today!
Related Properties
© 2025 My Florida Regional MLS DBA Stellar MLS. All rights reserved. All listings displayed pursuant to IDX. All listing information is deemed reliable but not guaranteed and should be independently verified through personal inspection by appropriate professionals. Listings displayed on this website may be subject to prior sale or removal from sale; availability of any listing should always be independently verified. Listing information is provided for consumers personal, non-commercial use, solely to identify potential properties for potential purchase; all other use is strictly prohibited and may violate relevant federal and state law. Data last updated 2025-11-17T23:46:48.427.
